コンフォリア池袋DEUX:高級賃貸マンション

コンフォリア池袋DEUX:お問い合わせ  
sp
空室一覧・賃料 sp 間取り図一覧

コンフォリア池袋DEUX:ルームプラン

sp

コンフォリア池袋DEUX:ルームプラン:見出し

sp

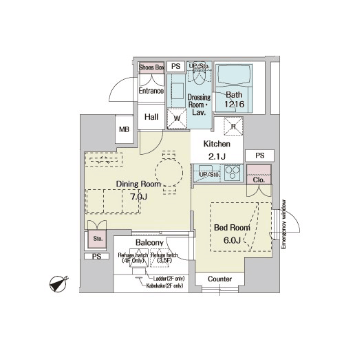
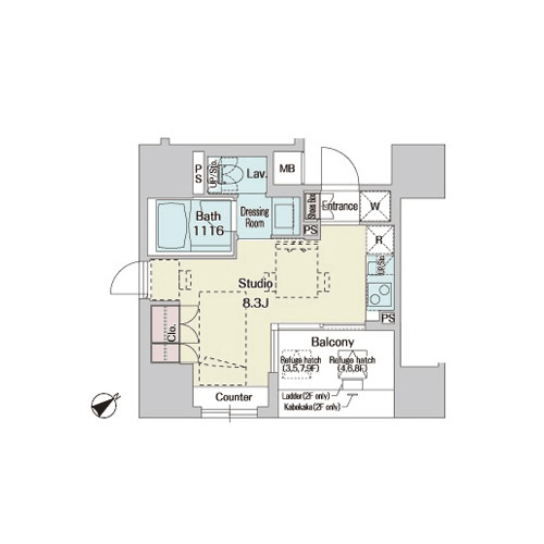
本物件のL字型の窓を備えた住戸では、明るさと開放感に満たされた住空間を創りあげました。
複数の窓を配することで風の通り道が生まれ、気持ちの良い住まい心地を叶えています。

また、暮らしの導線に考慮している点も見逃せません。
バランス良く配置された各種設備・仕様も、居住性を高めているといえるでしょう。

sp
sp
コンフォリア池袋DEUX:室内写真
sp
コンフォリア池袋DEUX:室内写真
sp
pagetop
sp