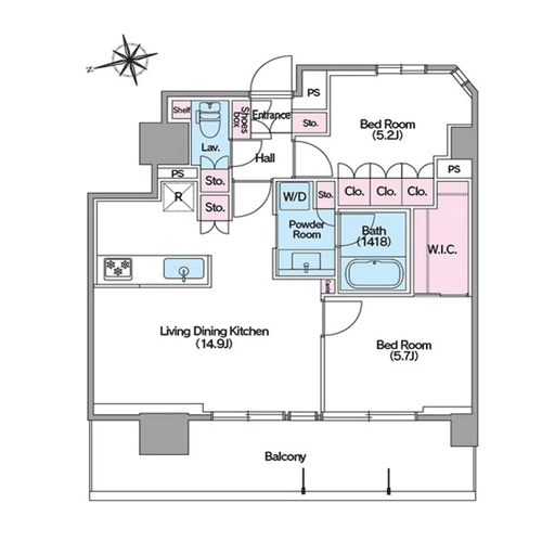
図面と現況が異なる場合は、現況を優先します。